Ипотечный калькулятор
Рассчитайте ежемесячный платёж по ипотеке для покупки квартиры в ЖК SET
Цена квартиры
39,032,000 ₽
Первоначальный взнос
7,806,400 ₽ 20%
2.0 млн. ₽ 5%
37.1 млн. ₽ 95%
Срок кредитования
20 год
1 год
30 год
Ставка
8 %
0.1 %
15 %
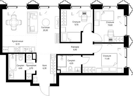
Площадь 80.00 м²
Потолок 2.85 м
Этаж 31 / 59
Корпус 2
Ежемесячный платеж 261,184 ₽
Расчет условий не является публичной офертой.
Финальные условия кредитования определяются при заключении договора.
Уровень изменения цен на квартиру
  • Мин: 39,032,000 ₽
  • Макс: 39,032,000 ₽
123
Подробнее о ЖК

Расположение и транспортная доступность

ЖК «SET» располагается в районе Можайский в Западном административном округе г. Москвы между природной зоной долины реки Сетунь и ключевыми магистралями западной части столицы.

Концепция и инфраструктура

Жилой квартал состоит из трех урбан-блоков. Каждый блок выполнен в своей стилистической концепции. Продуманное расположение зданий на территории позволяет открыть великолепные виды из окон, а благодаря панорамному остеклению в квартиры попадает максимум естественного света.

В первом урбан-блоке SET.1 предусмотрено три жилых корпуса переменной этажности: 18, 45 и 59 этажей. Они объединены трехэтажным стилобатом, в котором разместятся инфраструктурные объекты. Проект также включает в себя двухэтажный подземный паркинг и благоустроенный внутренний двор.

Во втором урбан-блоке SET.2 предусмотрено пять жилых секций переменной этажности: 5, 8, 28, 52 и 59 этажей. Проект также включает в себя здание ресторана, подземный паркинг и благоустроенный внутренний двор.

Застройка Set включает в себя не только жилые корпуса, но и инфраструктурные объекты. Все необходимое для повседневного комфорта будет расположено в шаговой доступности — резиденты разных возрастов смогут наслаждаться полнотой жизни во всех ее проявлениях прямо на территории квартала.

Подземный паркинг

Проект также включает в себя двухэтажный подземный паркинг на 495 машино-мест в корпусе SET.1 и на 440 машиномест в корпусе SET.2.

• Посты для подкачки шин.

• Доступ в паркинг при помощи системы распознавания автомобильных номеров.

• Два поста автомойки на минус первом этаже.

• Предусмотрено 40 машино-мест для электромобилей.

• Зарядки для электрокаров.

Благоустройство

Территория SET это тандем природной эстетики и технологичности. Лесной ландшафт становится органичной частью современного мегаполиса и предлагает новую точку опоры в постоянно меняющейся реальности. Каждый элемент тщательно спланированного пространства двора способствует самым приятным проявлениям здорового гедонизма — в единении с природой и в балансе с самим собой.

Структура двора подчеркивается большим количеством дикорастущей растительности, камней и скальных пород, акцентирующих внимание на рельефе и отсылающих к нетронутой карельской природе. Здесь предусмотрен целый ряд зон для активного и расслабленного отдыха:

• Воркаут-площадка с современными уличными тренажерами

• Игровой комплекс для детей

• Шезлонги под стильным навесом

• Водоем

• Площадка для йоги

• Уличная терраса

Для детей во дворе предусмотрена отдельная двухуровневая зона с безопасными резиновыми покрытиями и технологичным игровым оборудованием, включающим широкую пологую горку, песочницу, пещеры с лазами и скалолазные конструкции.

Площадка разработана индивидуально для проекта Set и соответствует общей лаконичной концепции двора.

Сердце сада — рукотворный водоем, напоминающий небольшое лесное озеро, в окружении каменных валунов и живописных деревьев. Возможность отдохнуть у воды, созерцая ее плавное течение — это исключительная привилегия для резидентов Set, подчеркивающая премиальность проекта.

Окружение

Школа управления Сколково

Лучшая бизнес-школа России предоставляет безграничные возможности для раскрытия потенциала талантливых и успешных. Здесь можно получить качественное дополнительное образование в сфере управления и предпринимательства.

Мещерский парк

Воплощение нового формата городского парка, в котором можно организовать разнообразный досуг для всей семьи. Велодорожки среди сосен, площадки для футбола и волейбола, зоны для купания и модные гастро-локации, в которые едут со всей Москвы — Мещерский парк с легкостью станет прогрессивной альтернативой традиционной поездке на пикник.

Переделкино

Одно из главных мест силы для интеллектуалов новой волны — сюда едут, чтобы погулять среди писательских дач и переосмыслить литературное наследие XX века. Приятный бонус — обед в изысканном ресторане «Библиотека» с интерьерами в стилистике mid-century.

Гребной канал в Крылатском

Легендарная спортивная трасса, которая уже больше 40 лет не теряет популярности среди ценителей гребли. Любимый британской аристократией элитарный вид спорта тут можно освоить под руководством чутких тренеров-профессионалов.

МГУ

Главный университет страны и альма-матер для тысяч представителей интеллектуальной элиты. Закрытая от автомобильного движения территория МГУ — отличная локация для прогулок, обладающая особой энергетикой и погружающая в атмосферу свободы.

The Rink

Игра в петанк и падел-теннис, неспешный обед в кафе с продуманным кето-меню и солнечные ванны на просторной террасе — в активитипарке The Rink в Сколково царит идеальная атмосфера расслабленного загородного отдыха с родными и друзьями.

Экотропа «Сетунь»

Прямо у квартала начинается оборудованная экотропа, которая проходит через парк «Долина реки Сетунь». Тут вас встречает шелест листвы, пение птиц и освежающая лесная прохлада — это настоящий оазис природы, помогающий замедлить ритм мегаполиса.

Характеристики
  • Класс жилья
    Класс жилья
    Бизнес
  • Класс жилья
    Статус строительства
    Сдача 3 кв. 2028 г.
  • Класс жилья
    Тип жилья
    Квартира
  • Класс жилья
    Тип дома
    Монолит
  • Класс жилья
    Этажность
    от 5 до 59
  • Класс жилья
    Количество корпусов
    8
  • Класс жилья
    Наличие паркинга
    Закрытый

Расположение и инфраструктура

Адрес
г. Москва, улица Верейская, 29/32 Б
Документация
Информация о застройщике
MR Group Основано
  • 0
    дома строится
    в 0 ЖК
  • 0
    домов сдано в
    0 ЖК
  • 0%
    домов сдано
    вовремя

Продажа 4-комн. квартиры, 80.00 м2

  • Бизнес класс
  • Сдача 3 кв. 2028 г.
39,032,000 ₽
487,900 ₽ за м²
г. Москва, улица Верейская, 29/32 Б
  • Давыдково 20 мин.
MR Group Основано