Расположение и транспортная доступность
ЖК «JOIS» располагается в районе Хорошево-Мневники
в Северо-западном административном округе г. Москвы, между деловым центром
города и природными зонами западной части столицы. Локация комплекса удобна как
для пешеходов, так и для автомобилистов.
Отсюда
просто добраться до центра Москвы, минуя пробки, и рукой подать до большого
общественного транспортного узла, станции МЦК и новой Рублево-Архангельской
линии Московского метро.
Концепция и
инфраструктура
JOIS — жилой
комплекс премиум-класса. Жилая инфраструктура комплекса, современная
технологичная архитектура, тщательно спланированное внутреннее благоустройство и
удобная локация позволяют воплотить самые смелые амбиции, дотянуться до самых высот
и разделить успех с близкими.
Преимущества JOIS:
• близость к Серебряному бору, ТТК и Москва-Сити
• приватная инфраструктура для жизни и работы внутри
комплекса
• авторская архитектура от Andy Snow, международного бюро
Genpro
• высокотехнологичный проект освещения мирового класса от Ilight
International
• функциональные планировочные решения
• панорамное остекление
• захватывающие виды и живописные закаты
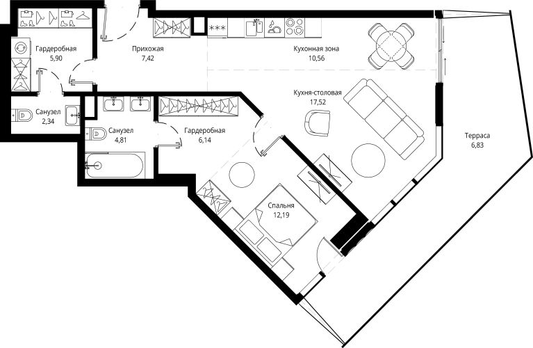
• эксклюзивные квартиры с приватными террасами
• премиальный дизайн интерьеров от Jaime Beriestain Studio
• разноуровневое благоустройство внутренней территории с
грамотным зонированием территории: зоны отдыха, детская инфраструктура, зоны
для пикника, променад у воды
• разделение зон для резидентов комплекса и сервисного обслуживания
• подземный паркинг
• охраняемая
территория и технологичные системы безопасности
Подземный
паркинг и кладовые
• система бесконтактного доступа по распознаванию
автомобильных государственных номеров
• зарядные станции для электромобилей с системой управления
мощностью
• посты для подкачки шин
• специальные помещения для хранения детских колясок
• велопарковка
• погрузо-разгрузочные зоны возле сервисных лифтов
• подземные
кладовые помещения
Благоустройство
Внутреннее
пространство JOIS — это территория зеленого цвета, привлекательной геометрии,
современного ландшафтного дизайна, гармонии технологий и живописной природы.
Каждый элемент благоустройства обладает сугубо практической функцией и украшает
собой ландшафт, вписываясь в его эстетику.
На территории JOIS есть все для занятий спортом на открытом
воздухе. Во внутреннем пространстве комплекса расположены площадки для футбола,
баскетбола, волейбола и зона со столами для игры в настольный теннис. Для
воркаутов на открытом воздухе предусмотрены отдельные зоны с современными
спортивными тренажерами.
• Грамотное зонирование территории: зоны отдыха, детская
инфраструктура, зоны для пикника, променад у воды
• Парящий мост со смотровой площадкой
• Пешеходный бульвар вдоль территории комплекса
• Амфитеатры и крытые павильоны для отдыха в любую погоду
• Переносная всепогодная уличная мебель
• Подогрев пешеходных дорожек в зимний период
• Площадка
для выгула собак
Территория JOIS щедро усажена деревьями, кустарниками и
цветами. На смотровых площадках крупные кроны деревьев дают тень даже в самые
жаркие и солнечные дни. Внутри комплекса JOIS можно почувствовать себя на
природе, где всегда дышится полной грудью.
• Всесезонное озеленение, сохраняющие цвет в любое время года
• Цветущие растения, меняющие оттенки цветников каждый месяц
• Широкие газоны для приятных прогулок на свежем воздухе
• Развивающий парк с описанием растений по QR-коду

